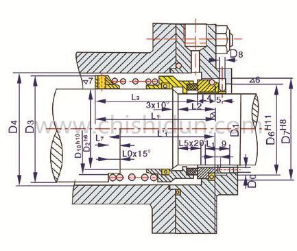
1523機械密封
作者:赤士盾 點擊量:


產品特點
被密封介質:非結晶的酸,堿及鹽類
內裝、單端面、單彈簧、平衡型、并圈彈簧傳動
材料組合
密封端面:石墨,碳化硅,碳化鎢,氧化鋁,
輔助密封:丁腈膠,氟橡膠,乙丙膠,PTFE
金屬構件:不銹鋼
運行參數
密封腔壓力:≤3MPa
密封腔溫度:-20℃~180℃
線速度:≤3000r/min
被密封介質:非結晶的酸,堿及鹽類
本文源自http://www.hongliyishu.com/product/bengyong/147.html,轉載請注明出處。
(責任編輯:機械密封http://www.hongliyishu.com)
產品導航
聯系我們
浙江生產基地:浙江嘉善環城東路硅谷開發區(赤盾科技園)
嘉興銷售及技術支持中心:嘉興市環北西路經濟開發區
國內24小時銷售人員電話:18202142627
國內24小時技術支持:13917573091
電子郵件:1050760236@qq.com
jxchishidun@163.com
即時聊天工具:QQ: 1050760236
微信:15990310020
網址:www.hongliyishu.com











